cob小间距显示屏目前已被大部分用户所接受。高硬度,广色域,高寿命:
cob显示屏产品的使用寿命是指LED的亮度衰减到初始亮度的50%以下,以实验室加速老化的试验为参考依据,通过加速因子计算得出LED显示屏的使用寿命接近于100000Hrs. 故使用寿命一般均定为100000Hrs。
产品概述
本产品采用 COB 封装技术,和传统的 SMD 表贴式封装不同,它是将发光芯片集成在 PCB 板中,而非一颗颗焊接于 PCB。该技术有效提升了 LED 显示屏可靠性、发光光色,防护性能等;
产品特色
u 通用标准化 600x337.5mm 压铸镁铝箱体,三种可选 P0.9375、P1.25、P1.5625 点间距;
u 150*168.75mm,标准模组尺寸设计,保证磁吸安装时有足够空间放置电源及线材,搭配专利型材快速拼装结构,拼装快捷方便,无接缝,无亮暗线。满足落地,移动,贴墙,吊装等多种安装方式,简单方便,无需专业人士操作即可完成。
u 防水、防尘、防氧化、防静电、防撞击;
u 采用发光芯片主动发光,黑屏整屏墨色完全一致,像素点对点吻合1920*1080/3840*2160,2K/4K分辨率,播放高清视频无缩放,达到最完美播放效果。
u 喷油卡扣式面罩保证模组拼接精度,采用生益高TG(170℃)沉金S1000-2基材,保证PCB板永无变形,高阶材料大幅度减轻“色温”现象。
u 发光视角可达 170 度(SMD 显示模组发光角度 120 度),视角更广;
u 散热优良、光衰小,直接通过 PCB 板散热,延长使用寿命;
模组规格
项目 | 规格 | 产品样图 |
产品类型 | COB 模组 |
|
底壳材质 | 注塑底壳 |
点 间 距 | 0.9375mm,1.25mm,1.5625mm |
分 辨 率 | 320x360,240x270,192x216 |
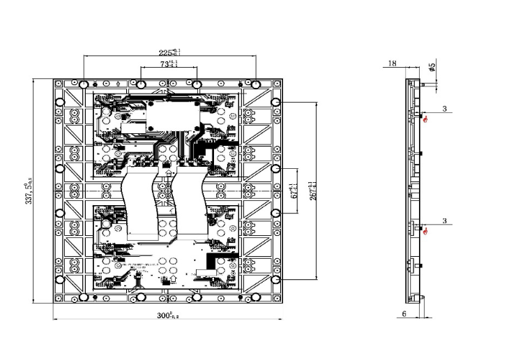
模组尺寸 | 300mm x 337.5mm(W x H) |
箱体规格
项目 | 规格 | 产品样图 |
产品类型 | COB 箱体 |  |
材质 | 压铸铝 |
箱体厚度 | 78mm |
箱体重量 | 6.0 KG |
箱体尺寸 | 600mm x 337.5mm(W x H) |
模组尺寸机构

模组外观

箱体尺寸结构

箱体外观

规格参数
1 技术参数
项目 单位 P0.9375 参数 P1.25 参数 P1.5625 参数 |
像素点间距 | mm | 0.9375 | 1.25 | 1.5625 |
像素结构 |
| COB 1R1G1B | COB 1R1G1B | COB 1R1G1B |
单元组成(W×H) |
| 2 x 6 | 2 x 6 | 2 x 6 |
像素密度 | dot/m² | 1,137,778 | 640,000 | 409,600 |
模组尺寸(W×H×D) | mm | 300 x 337.5 x 55 | 300 x 337.5 | 300 x 337.5 |
模组分辨率(W×H) | 点 | 320x360 | 240x270 | 192×216 |
模组底壳材质 |
| 注塑底壳 | 注塑底壳 | 注塑底壳 |
箱体尺寸(W×H×D) | mm | 600x337.5x78 | 600x337.5x78 | 600x337.5x78 |
箱体分辨率(W×H) | 点 | 640x360 | 480x270 | 384x216 |
箱体材质 |
| 压铸镁铝 | 压铸镁铝 | 压铸镁铝 |
扫描方式 | Scan | 1/60 | 1/45 | 1/36 |
箱体平整度 | mm | ≤0.10 | ≤0.10 | ≤0.10 |
灰度等级 | bit | 14 | 14 | 14 |
防护等级 |
| IP45 | IP45 | IP45 |
维护方式 |
| 前维护 | 前维护 | 前维护 |
箱体重量 | kg/panel | 6.0 | 6.0 | 6.0 |
2 光学特性


3电气及环境特性

使用拓扑图
